Lilac Cottage 1 Bdr Style &
Craft Downtown Kent
This Victorian Home oozes with Character and Charm. It is one of KentSuites "History in the Making" homes. Restoring these gems and combining Victorian Charm with Modern Decor is what KentSuites does best.
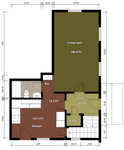
Situated just steps from downtown shops and restaurants , and a short walk to Campus, this home is fully updated, carpet free with oak floors and ceramics throughout. The living / dining room is a large, gorgous room with tons of natural light . This homes kitchen has been restored with cherry cabinetry, and glass backsplash, a modern bathroom with glass block! Oh and did you see the finished basement? Resesed lighting, glass block and a wall to wall tile floor. What more could you ask for? You said wifi? Consider it done!
Viewed by appointment only. Sorry No Pets No Smoking. Discounted rent is obtained by paying two separate payments in July and January. Note this unit is single occupancy only.
Included in the rent: Laundry facalities, Off street parking for 1 car. Trash and Wifi








