NY Style 2 Bdr in Kent's Mill District
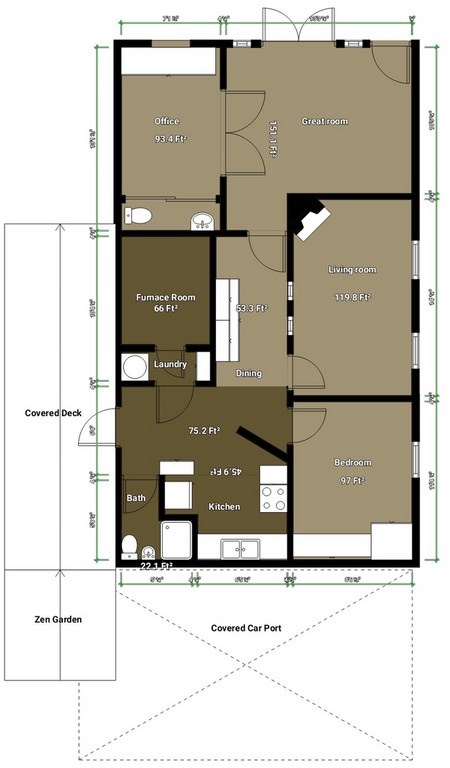
This unfurnished one bedroom 1st floor high style spacious apartment (4 rooms + bath), perfect for anyone looking for efficient tasteful downtown accmodations. Located in the heart of Kents Mill District, it has the privacy coupled wih the convenience of urban living, score! Exposed beams, AC, Dimplex fireplace, high ceilings, side tin roof covered deck w/brick walkways to gardens, off-street parking. This is a must see to believe as it has a Zen Garden in the back yard!
Note, this unit adds the Front of the buildings Office space to the unit (with an opptional door connecting both). For the professional that needs commercial space connected to their living space, this is ideal. To see the Office arangement, Carriage House Store Front Studio. This is a sweet setup for anybody that needs to work at home but see the occasional client in a professional space!
Rent includes low utilities (trash collection included in rent). Viewed by appointment only. Sorry No Pets No Smoking Discounted rent is obtained by paying two separate payments in July and January.
Included in the rent: Laundry , Off street parking for 1 cars, Trash collection, WiFi available








